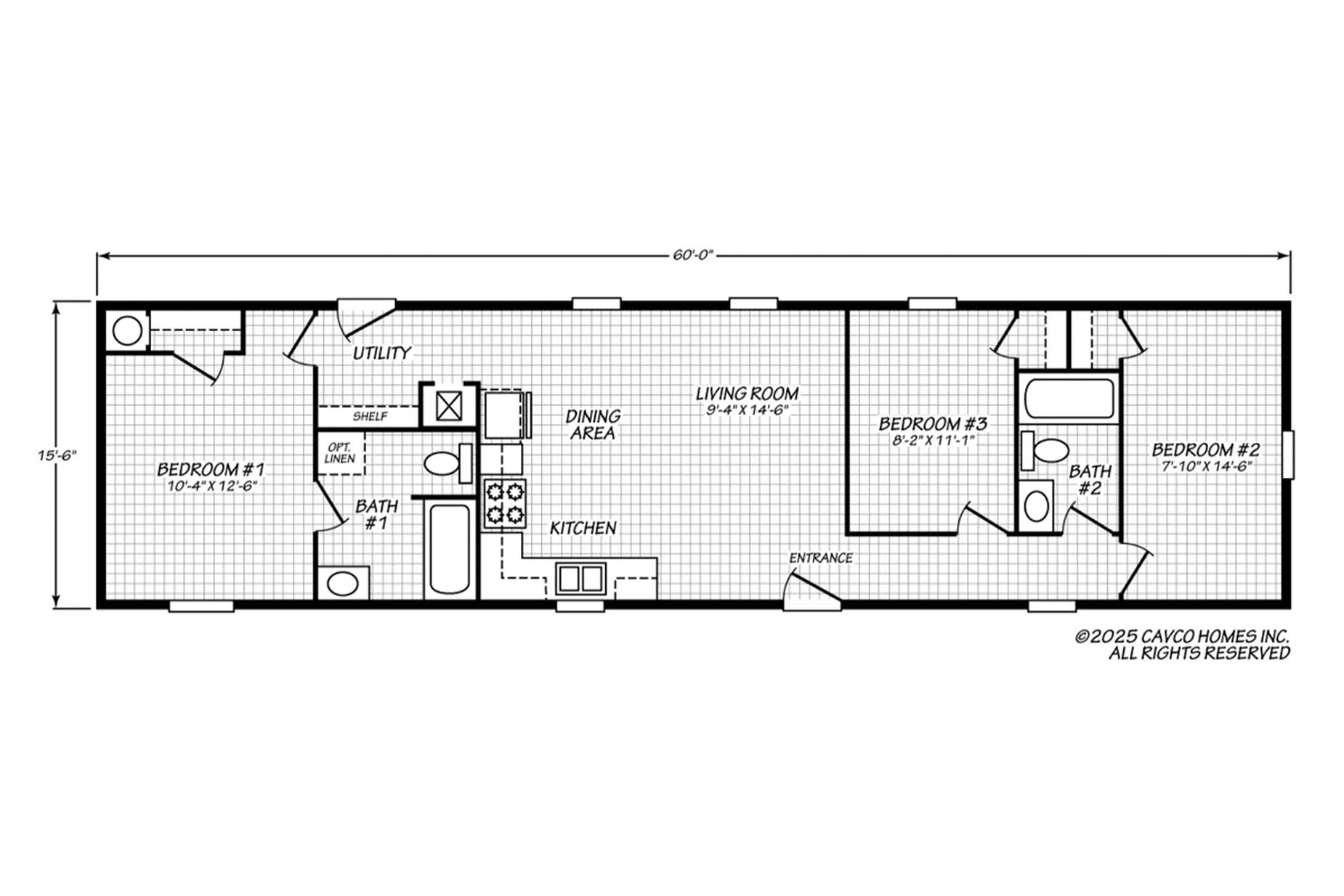
Berkshire 16603C

Manufactured

Some exterior features shown and listed are optional. All features and options shown may not be available on all models. Please check with your Home Consultant for availability and pricing.

930
Square Feet
3
Bedrooms
2
Bathrooms

Included In Every Home

  • Energy Star Insulation Envelope (R40 Roof, R21 Sidewall, R33 Floor)
  • Whole Home OSB Wrap
  • 2×6 Exterior Wall Construction
  • 30 Year Architectual Shingles
  • 40-Gal Hot Water Heater
  • Whole Home Water Shut Off Valves
  • Energy Star Rated Appliances
  • LED Recessed Lighting Throughout
  • Deep Bowl Square Porcelain Sinks (Never Plastic)
  • One Piece Fiberglass Tubs/Showers (Never Plastic)
  • Smart Choice For Homebuyers
  • High Quality, High Value Homes
  • Style and Sustainability

Request More Information

Name(Required)
I own land or have land for my new home:(Required)

Gallery

Click images to enlarge. Images may not be of actual lot model.

Because we have a continuous product updating and improvement process, plans, dimensions, features, materials, specifications and availability are subject to change without notice or obligation. Please refer to working drawings for actual dimensions. Renderings and floor plans are artist’s depictions only and may vary from the completed home. Square footage calculations and room dimensions are approximate subject to industry standards. Some features shown are optional.

Some photos may not be of actual stock unit. 

Scroll to Top